본문
캐드프로젝트 > 식음공간 > 음식점 분류
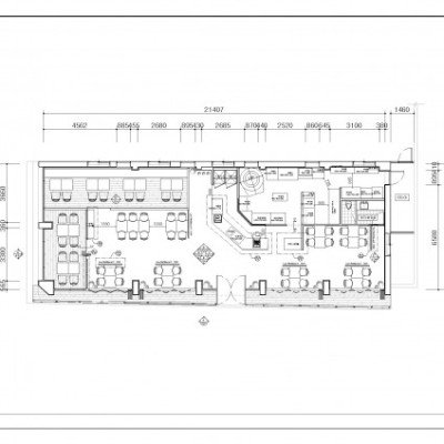
백화점내 음식점 fullset (평면시리즈,입면,기본상세,월상세)
캐드 프로젝트 도면 - 상업공간 - 일반음식점(백화점내)
프로젝트명 : 음식점 fullset
평면도,천정도,패턴도,입면도,월타입상세도,바닥상세도,천정상세도,벽체상세도,도어스케쥴,도어상세도
면적 : -평/ -M2
작성년도 : 2021년
02 FLOOR PLAN_210827.dwg
03 ELEVATION_210827.dwg
04 WALL TYPE DETAIL_210827.dwg
05 FLOOR DETAIL_210827.dwg
06 CEILING DETAIL_210827.dwg
07 WALL DETAIL_210827.dwg
08 DOOR SCHEDULE_210827.dwg
09 DOOR DETAIL_210827.dwg
캐드프로젝트 > 식음공간 > 음식점 분류
건축,인테리어,전기,설비,조경,토목,캐드,오토캐드,dwg,cadblock,cadsource,cad
다운로드/Downlode
관련자료
관련자료
-
이전
-
다음







