본문
캐드디테일 > 사우나 > 샤워 분류
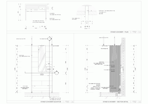
입식샤워파티션 CD-SU-SW-STD008

다운로드/Downlode
관련자료
-
다운로드시 2000 포인트 차감 (10일 동안 다운로드 이력 유지)다운로드하시고 꼭 댓글부탁드립니다^^등록일 2022.06.23 21:31
관련자료
-
이전
-
다음