LIBRARY

캐드소스/캐드디테일/캐드프로젝트/모델링/판넬/실측자료/견적서/기타자료

공유게시판입니다.


본문

캐드디테일 > 창호 > 여닫이 분류

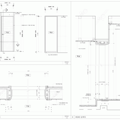
가마찌도어 CDDG001

인테리어 캐드디테일(상세도) - 창호 - 후레임도어

가마찌도어 상세도 CDDG001 

 구분

내용 

비고 

 주요자재

강화유리, 금속 

 

 공법

 

 


 


캐드디테일 > 창호 > 여닫이 분류
건축,인테리어,전기,설비,조경,토목,캐드,오토캐드,dwg,cadblock,cadsource,cad

다운로드/Downlode

관련자료

가마찌도어 CDDG001
캐드디테일 > 창호 > 여닫이 분류

컨텐츠 정보

댓글 0
등록된 댓글이 없습니다.
  • 다운로드시 2000 포인트 차감 (10일 동안 다운로드 이력 유지)
    다운로드하시고 꼭 댓글부탁드립니다^^
    등록일 _ 2016.02.01 14:36
  • 관련자료


    알림 0